- Soort bouw
- Bestaande bouw
- Inhoud
- Circa 2.479 m³
- Bouwjaar
- Gebouwd in 1968
- Aantal kamers
- 5 kamers (3 slaapkamers)
Bent u op zoek naar een vrijstaande woning met zeer ruime bedrijfshal, multifunctioneel in gebruik, groot woonoppervlak omdat het achterste gedeelte eenvoudig te combineren is met het voorhuis, met momenteel drie slaapkamers, een ruime badkamer en zeer veel parkeerruimte, gelegen in een gezellige woonwijk.
Kom dan naar de Molenweg in Bergharen!
De woning ligt op loopafstand van het Kulturhus De Zandloper met o.a. peuterspeelzaal, bibliotheek, basisschool, ontmoetingsruimtes, een muziekzaal, ruimten voor biljarten en de gymzaal. Maar ook op loopafstand van de Kapelberg, een rustige bosrijke omgeving met een fraai historisch gebouw. Bergharen heeft een rijk verenigingsleven, een mooie sportaccommodatie en is gelegen in de nabijheid van een groot watersport- en recreatiegebied. Door de centrale ligging in het Land van Maas en Waal zijn de plaatsen Wijchen en Druten (waar alle voorzieningen aanwezig zijn) binnen 10 autominuten, Nijmegen en Oss binnen 20 minuten te bereiken, ook bent u in vijf minuten op de A73/A50.
De indeling van de woning bestaande uit,
De begane grond met:
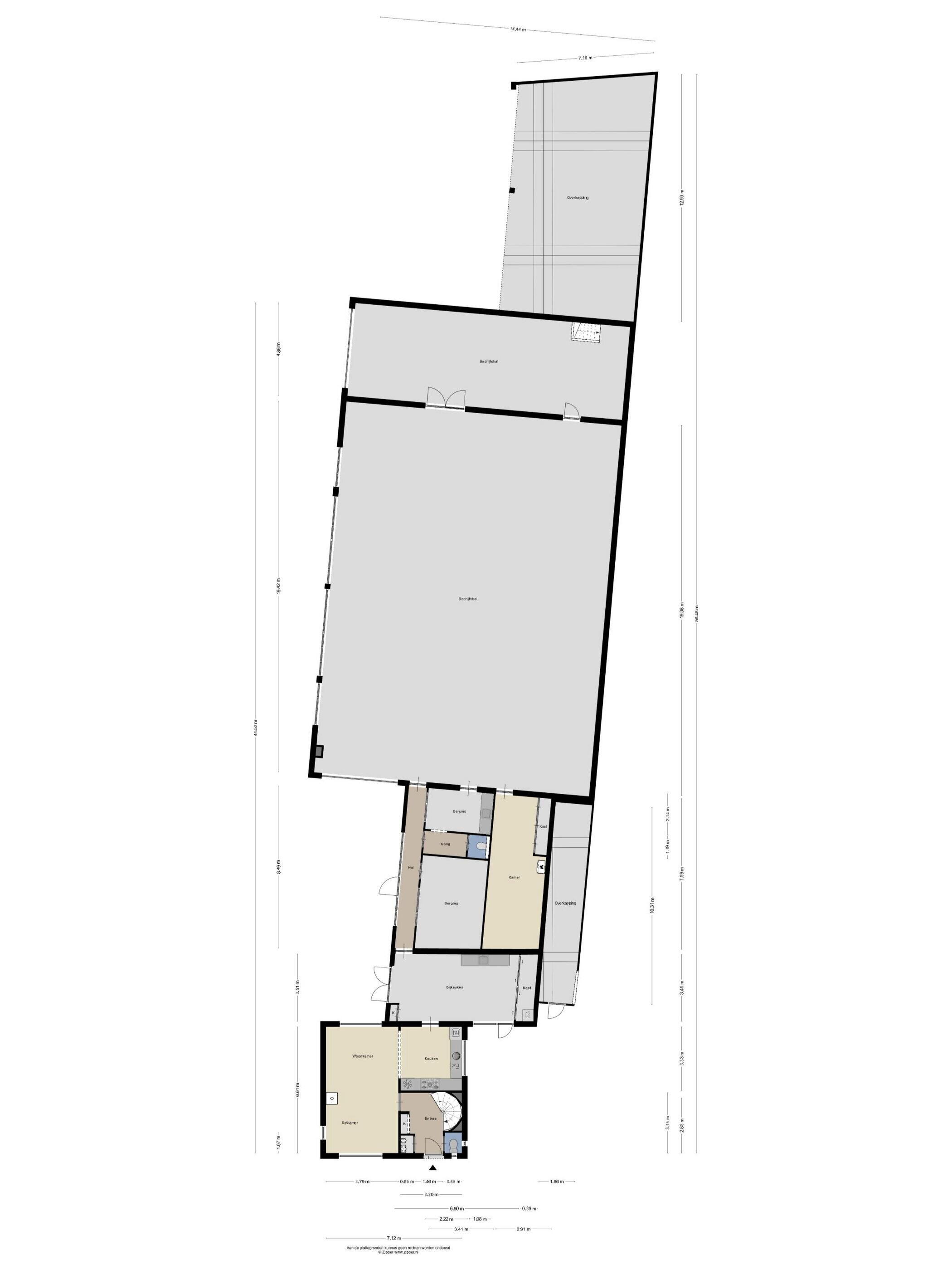
De entree, hal, meterkast, toilet en toegang tot de ruime kelder, de ruime doorzon woon-/eetkamer met airco en sfeervolle open haard, middels de boogmuur de zeer ruime L-keuken, fraai betegeld, met het ruime 5-pits gasfornuis, de mooie schouw met afzuigkap, de rvs oven en magnetron, de vaatwasser, koelkast en vriezer, aansluitend de grote bijkeuken/berging met keukenblok, wasmachine aansluiting, ruime kast met schuifdeuren, de toegang tot de zijtuin en toegang tot de inritzijde. Aansluitend het tweede gedeelte van de woning met de lange hal, de ruime eerste berging, het gangetje naar het toilet, toegang tot de bedrijfsruimte met toegang tot een extra kamer nu in gebruik als kantoor met ruime kast en de tweede cv- installatie, naastgelegen de tweede berging.
De eerste verdieping met:
De overloop, de ruime eerste slaapkamer met airco en toegang tot het dakterras, de badkamer met ruime inloopdouche, wastafelmeubel, toilet en designradiator, de ruime en lichte slaapkamer twee met airco en slaapkamer drie met dubbele inbouwkast.
De zolder is:
Bereikbaar via een vaste trap naar de bergzolder met cv-installatie
De buitenruimte met:
De voortuin met beklinkerde paden, verhoogde stenen borders met vaste planten, grassen en sierheesters, siergrind, omgeven door een metalen sierhekwerk, naastgelegen de eerste inrit.
Aan de linkerzijde de zeer ruime inrit naar de bedrijfshal, afsluitbaar met de elektrische poort.
Aan de rechterzijde de beklinkerde tuin met ruim terras en een zeer ruime overkapping en omringd door een houten schutting.
Bijgebouwen:
Grote stenen schuur/bedrijfshal (± 19.50 x 14.40 meter) voorzien van elektra, water en verwarming, houten kozijnen met dubbelglas, roldeur (3.60 m doorrijhoogte), poetslift, smeerput en bovenkraan 2000 kg hefgewicht. Aansluitend het tweede gedeelte (± 14.40 x 4.90 meter) met de toegang naar de zeer ruime kelder van ± 8.00 x 14.44 meter.
Aan de achterzijde een ruime overkapping van ± 12.90 x 7.16 meter, schuin toelopend.
Overige informatie:
- De woning met tuin en ondergrond heeft als bestemming ‘wonen’, de bedrijfshal met ondergrond en aanhorigheden
heeft een bedrijfsbestemming
- Bij het woonoppervlak is het tweede gedeelte van de woning meegenomen
- De inhoud is gebaseerd op het totale object met bedrijfshal
- Energielabel: F
- Kozijnen: Hout
- Beglazing: Geheel dubbelglas
- Cv-installatie: Remeha 2023
- Voorzieningen: Rolluiken, tv-kabel, glasvezel, airco’s, automatische bewateringsinstallatie plantenbakken, tuinkraan en
stroomaansluiting
- Woonkamer: Stucwerk wanden, pvc-vloer
- Keuken: 2010 met pvc-vloer
- Badkamer: 2016
- Kelder: Ruim e kelder van ± 7.5 m²
- Vloeren: begane grond en 1ste verdieping betonnen vloer, 2e verdieping houten vloer
- Kruipruimte: Niet aanwezig
- Schilderwerk buiten: 2023
- Parkeergelegenheid: Openbaar parkeren en op eigen terrein ± 8 auto’s
- Eternietplaten onder dak woning, asbesthoudende golfplaten op de bedrijfshal en het afdak achter de bedrijfshal
- Bouwjaar bedrijfshal 1979
- In de koopovereenkomst zal o.a. de asbest-, ouderdoms- en niet-zelfbewonen clausule opgenomen worden Lees de volledige omschrijving
Overdracht
- Vraagprijs
- € 625.000 k.k.
- Status
- Beschikbaar
Bouw
- Object type
- Eengezinswoning, vrijstaande woning
- Soort bouw
- Bestaande bouw
- Bouwjaar
- 1968
Oppervlakte en inhoud
- Inhoud
- 2.479 m³
Indeling
- Aantal kamers
- 5 kamers (3 slaapkamers)
- Badkamervoorzieningen
- Inloopdouche, toilet, en wastafel
Energie
- Energielabel
- F
- Energielabel registratie
- 05-11-2024
- Verwarming
- Cv-ketel
Energieverbruik in Bergharen
Energielabel deze woning
Energielabel F
Publicatie energielabel: 05-11-2024
Stroomverbruik per jaar
(Gemiddelde vrijstaande woning in Bergharen)
Gasverbruik per jaar
(Gemiddelde vrijstaande woning in Bergharen)
* Cijfers zijn afkomstig van het CBS en bedoeld als indicatie en kunnen verschillen voor deze woning
Indicatie hypotheeklasten
Eigen inleg:
Spaargeld / overwaarde
Rente:
Laagste 10-jaars rente
Laagste 10-jaars rente
2,78% - Centraal Beheer - NHG
3,04% - Centraal Beheer - 80%
Laagste 20-jaars rente
3,29% - Centraal Beheer - NHG
3,52% - Centraal Beheer - 80%
Laagste 30-jaars rente
3,41% - Centraal Beheer - NHG
3,7% - Argenta - 80%
Hypotheek:
Bruto maandlasten: € 0 p/m
Netto maandlasten: € 0 p/m
Hoe berekenen we dit?
Het rentepercentage is gebaseerd op de laagste 10 jaars vaste rente voor één hypotheekdeel. De vermelde rente (3.04% zonder NHG) is gecontroleerd op 18-05-2026. Deze berekening is gebaseerd op een annuïteitenhypotheek die volledig wordt afgelost, waarbij de maandlasten gedurende de gehele looptijd gelijk blijven. De werkelijke rente en netto maandlasten kunnen variëren, afhankelijk van uw persoonlijke situatie en de hypotheekverstrekker. Raadpleeg een financieel adviseur voor een nauwkeurige berekening en advies. Aan deze berekening kunnen geen rechten worden ontleend; het dient enkel als indicatie.
Documentatie
Kadastrale kaart
Leefomgeving
BAG uittreksel
Plattegronden PDF
WOZ waarderapport
Brochure
Bezichtiging
Bod uitbrengen
Waardebepaling
Zoekopdracht
Alles downloaden
Zonnegrenzen bekijken
Inwoners in Bergharen
Cijfers voor postcodegebied 6617
- Totaal aantal inwoners
- 1770 inwoners
- Mannen
- 51%
- Vrouwen
- 49%
Inwoners in Bergharen
Cijfers voor postcodegebied 6617
- tot 15 jaar
- 14%
- 15 tot 25 jaar
- 14%
- 25 tot 35 jaar
- 16%
- 45 tot 65 jaar
- 33%
- 65 en ouder
- 23%
Huishoudens in Bergharen
Cijfers voor postcodegebied 6617
- Eenpersoons zonder kinderen
- 23%
- Meerpersoons zonder kinderen
- 36%
- Huishoudens zonder kinderen
- 59%
Huishoudens in Bergharen
Cijfers voor postcodegebied 6617
- Huishoudens met één kind
- 5%
- Huishoudens met meerdere kinderen
- 36%
- Huishoudens met kinderen
- 41%
Woningen in Bergharen
Cijfers voor postcodegebied 6617
- Woningen voor 1945
- 21%
- Woningen tussen 1945 en 1965
- 11%
- Woningen tussen 1965 en 1975
- 15%
- Woningen tussen 1975 en 1985
- 14%
- Woningen tussen 1985 en 1995
- 18%
Woningen in Bergharen
Cijfers voor postcodegebied 6617
- Woningen tussen 1995 en 2005
- 12%
- Woningen tussen 2005 en 2015
- 10%
- Woningen na 2015
- 1%
- Huurwoningen
- 20%
- Koopwoningen
- 80%
Overige in Bergharen
Cijfers voor postcodegebied 6617
- Gemiddelde WOZ waarde
- € 329.000,-
- Personen onder de 65 met uitkering
- 3%
Overige in Bergharen
Cijfers voor postcodegebied 6617
- Adressen per km²
- 173
- Stedelijkheid (schaal 1 op 5)
- 20%
Korte feiten over Bergharen
Bergharen is een Nederlands dorp in de gemeente Wijchen (provincie Gelderland). Op 1 januari 2021 telde Bergharen 1.750 inwoners. Het dorp is gelegen bij een rivierduin, dat zich van Heumen tot Horssen uitstrekt en grotendeels met bos begroeid is.
HW Makelaardij Wijchen
Indien u vragen heeft of u wilt een bezichtiging inplannen, dan kunt u gebruik maken van het formulier hiernaast. Er zal daarna op korte termijn contact met u worden opgenomen.
Contact opnemen
Over HW Makelaardij
HW Makelaardij staat garant voor een enthousiaste benadering, transparante communicatie en heldere afspraken. U kunt rekenen op onze persoonlijke aandacht en een actieve, deskundige begeleiding. Als u op zoek bent naar een makelaar die uw belangen vooropstelt, bent u bij ons aan het juiste adres. HW Makelaardij werkt snel en professioneel!
Onze sterke punten zijn:
- Dankzij onze kleinschalige portefeuille kunnen wij u volop persoonlijke aandacht en maatwerkadvies bieden.
- Wij bieden scherpe courtagetarieven en een aantrekkelijk uurtarief.
- U kunt rekenen op onze intensieve begeleiding gedurende het hele aan- en verkooptraject.
- Met onze uitgebreide (juridische) kennis houden wij u volledig geïnformeerd over alle aspecten van het aan- en verkopen van een woning.
- Wij bieden een uitgebreid scala aan diensten.
Of u nu een huis wilt kopen, verkopen of de actuele marktwaarde van uw woning wilt weten, wij nodigen u van harte uit voor een vrijblijvend gesprek bij ons op kantoor in Balgoij (Wijchen) of bij u thuis.
Nieuwste reviews
-
Saltshof 2808
Mike van HW makelaardij heeft ons top geholpen, geadviseerd en begeleid in de aankoop van onze nieuwe woning. Hij is laagdrempelig bereikbaa...
-
Watersnipstraat 86
Wij zijn ontzettend prettig geholpen en begeleid door Mike van HW Makelaardij. Hij heeft met ons door de woning gelopen, kritisch gekeken na...
-
Portugalhof 3
Hij had een persoonlijke begeleiding. Vriendelijk, correct. Je kon altijd terecht voor vragen.Alles is vlot verlopen. Uiteindelijke verkoopp...